7 Makin Road, Ingle Farm, SA, 5098

$780,000
Sold on 17th April 2025
  • 3 BED
  • 1 BATH
  • 1 CAR

Charming 3-Bed Haven in Family-Friendly Ingle Farm - Auction 04/04/25 7pm USP

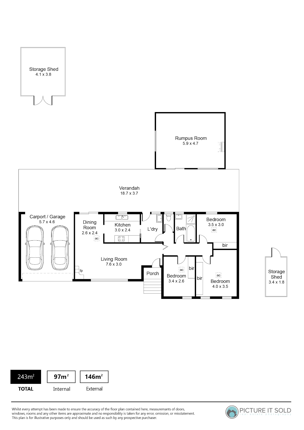
Nestled on an immaculately kept 610sqm (approx) corner block, this one owner, 3 bedroom home is now ready for the next generation to make new memories.

Although this very tidy home has 3 bedrooms, all with built-in, mirrored robes, there is also a very generously sized rumpus room situated out the rear of the property suitable for a second living area or a 4th bedroom!

The home has been freshly painted and all area’s of carpet have been professionally cleaned very recently. As was the rage in the time this home was built, the owners would have paid a substantial amount of money to adorn their lounge with the expensive teak fittings to accommodate their TV, stereo etc.

For comfort, there is ducted air conditioning and a heater ideally placed in the lounge that will service the whole of the main house. Automatic roller shutters are on all the front windows for added security and to keep the home cool in summer and warmer in winter. The roller door to the carport opens up to a wider than usual single carport that opens up to the wide veranda that runs the length of the house at the rear.

What you’ll love about 7 Makin Road, Ingle Farm

* 2 living areas or 4 bedrooms
* Ducted Air conditioning
* Heater in the lounge that services the whole main house
* Roller shutters to all front windows
* Kitchen overlooking the rear yard
* Corner block with the ability to add an extra driveway
* Garden shed at the rear of the property

This home is about a 10 minute walk to the Ingle Farm shopping centre as well as walking distance to Valley View Secondary school, Ingle Farm East Primary and Makin Reserve is just at the end of the street for a kick around.
Rates: $873.80
Emerg Svcs Levy: $129.60
SA Water:
RLA 269823


Property Details
Property Type: Residential
Land Area: 609.8463 SQM

Property Features
Evaporative Cooling
Built In Wardrobes

Property Location