4/1 Calabro Way, Burleigh Heads, QLD, 4220

LEASED - CONTACT AGENT
10380 SQM
Leased
retail

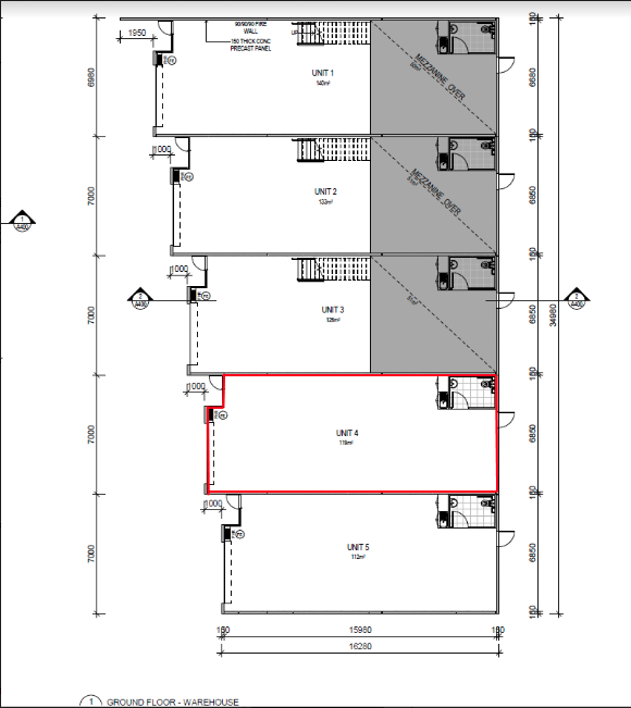
Warehouse Studio/ Commercial Kitchen Spaces in Burleigh! 119 sqm

Trendy and Fresh “Calabro Way Warehouse Spaces” are ideally situated in Burleigh Gardens Industrial Estate, on the corner of Calabro and Ern Harley Drive in a prominent elevated location with a nice Northern aspect with easy access to the M1 and centrally located.

Architecturally designed, these spaces offer an ideal opportunity to showcase your business ..

Lease Term 3 years
Options 3 years
Rental $250 psm plus outgoings plus GST
Outgoings $ 68 psm plus GST

The premise is food equipped with grease trap, gas to premise.


Property Details
Property Type: Commercial
Floor Area: 209 SQM
Land Area: 10380 SQM