24 Cherry Lane, BELLI PARK, QLD, 4562

$556,000
Sold on 27th May 2019
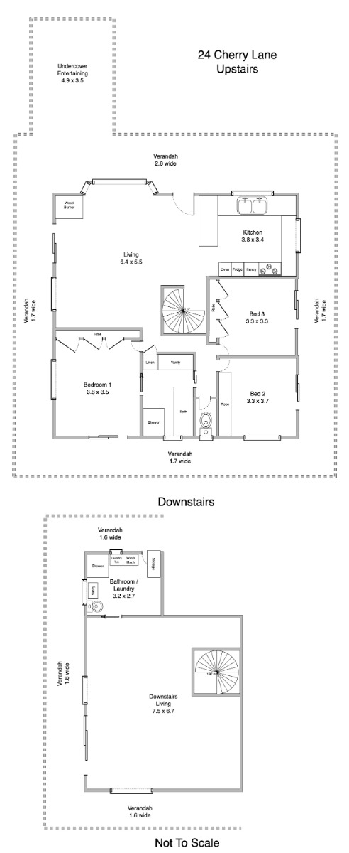
  • 3 BED
  • 2 BATH
  • 4 CAR

A REAL COUNTRY CHARMER

Situated In A Wholly Rural Setting

Tucked away from the hustle and bustle this home is perfectly placed for country life, yet close enough to offer easy access to the Bruce Highway and all the Sunshine Coast has to offer.

Perched on top of a hill you have views on three sides, plus are high enough to catch all prevailing breezes.

Set up for self sufficiency. There is ample water storage plus a dam, fruit trees, solar, inground swimming pool, a cosy log burner for a winters evening plus an 8 x 6 shed with 15 amp power.

This safe haven from city pressures is on the market to sell as the owners have already started their new adventure.


Property Details
Property Type: Residential
Land Area: 6601 SQM

Property Features
Solar Panels
Water Tank
Open Fire Place
Reverse Cycle Aircon
Built In Wardrobes
Floorboards
Rumpus Room
Balcony
Outdoor Entertainment Area
Secure Parking
Swimming Pool-In Ground

Property Location