106 Kinabalu Drive, Tamborine Mountain, QLD, 4272
- 5 BED
- 3 BATH
- 4 CAR
Substantial Modern day retreat with a touch of Opulence on a very private 3035m2 Rainforest block
If you want the perfect escape with complete privacy amongst your own hidden rainforest, then look no further! This Substantial Modern day, traditional rainforest home is tucked away on a very peaceful 3035m2 block and is an absolute compliment to the current owners.
The home has undergone extensive renovations over the past few years and now that the dream is complete, it is time for the current owners to move on. This being only the second time this beautiful property has ever been for sale.
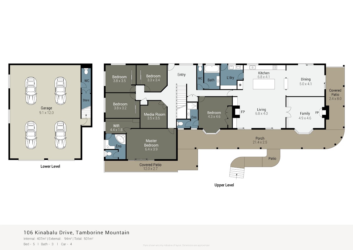
Designed and built to cater for the growing family, you will like how inviting the open plan living, kitchen, dining area feels. The kitchen is a gourmet’s delight with a spacious timber Island bench, SMEG freestanding oven (with teppanyaki grill) and 6 burner gas cooktop, Bosch integrated dishwasher and plenty of storage to suit the home chef.
The separate formal living/library is the perfect place to escape and relax with a good book in front of the open fireplace on those cool winters nights and the media room and 5 spacious bedrooms can be closed off, ensuring private spaces no matter what the occasion. The 9ft ceilings, tiled flooring and earthy tones result in a home that is both gentle and natural, giving you a sense of spaciousness and relaxation..
Large windows bring the outside in, drawing light and breeze and picturesque views of the surrounding rainforest with plenty of birdlife to enjoy.
The loop driveway gives easy access for the largest of vehicles and the separate cut pad is the perfect place to put a large shed or just great for parking extra vehicles like caravans, trailers, etc.
Complete privacy is assured with one neighbour being ‘Areca Gully’ council reserve national park and the other neighbour completely out of view.
The new owner will feel each day living here is an escape from the outside world into a tranquil tropical oasis.
INTERNAL
Formal living room with open fireplace and built in bookshelves
Separate dining area
Open plan kitchen and living room with combustion fireplace
Spacious kitchen with separate butler’s pantry/laundry
Bosch integrated dishwasher
SMEG freestanding oven (with teppanyaki grill) and 6 burner gas cooktop
Timber Island bench with power
Extra large fridge space, plumbed for water
9ft ceilings throughout
Generous size master bedroom with walk in robe, ensuite and reverse cycle air con
Guest bedroom with ensuite and built ins
Media room with extra insulation for sound proofing
3 spacious Bedrooms all with built in wardrobes
Ceiling fans in bedrooms and media room
Main bathroom with separate toilet
4 Car garage with separate toilet and sink
Emergency lights for power cuts
Fully lined attic storage space
Timber vinyl flooring in living and master bedroom
EXTERNAL
New double insulated Colourbond roof with gutter guard
Back part fenced for pets
Gas hot water units
Separate cut pad at front of property for additional shed
Separate pump room with UV and filter system
2 Large tanks (32,500 and 25,000 litre) and small water tank in front garden
Septic system with 12-month contract (recently renewed)
Firepit area overlooked by Areca gully and seasonal creek/waterfall.
If you have ever imagined escaping the hustle and bustle of life and surrounding yourself with nature, a seasonal creek/waterfall yet being central to everything, then look no further, this is the place!
This is a great opportunity to buy into the local market and enjoy the lifestyle that Tamborine Mountain has to offer. Conveniently located within a short drive to all mountain facilities including shops, schools, medical centres & Gallery Walk and just 20 minutes to the M1, Oxenford and Helensvale, easy access to the Gold Coast and Brisbane.